URBAN LAKESIDE
Deuxième année de Bachelor | 1er et 2ème semestre | 2012-2013
Professeur: Emmanuel Rey | LAST
Assistants: Jean Camuzet et Nicolas Strambini
Travail de groupe (forme urbaine) en collaboration avec Sébastien Sartorio et Laetitia Berger
Travail individuel (typologie et détail)
Temps à disposition: 26 semaines
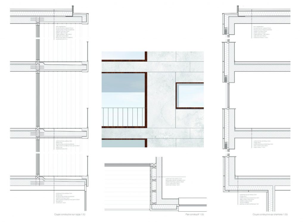
Le site est une friche ferroviaire sise à Yverdon, entre la gare et le lac. Trois bâtiments sont à conserver en l’état: les ateliers mécaniques des CFF, la HEP et l’hôpital psychiatrique. Une densité de 1.7 doit être respectée. Des bâtiments mixtes doivent être bâtis, avec 3’000 personnes et 1’500 emplois supplémentaires. A travers ce projet, nous avons traité toutes les échelles: de l’urbanisme au détail constructif. A l’échelle du quartier, il s’agit d’étudier les interactions entre les questions de densité, de mobilité, de mixité et de qualité de vie. On trouve, sur le site, trois canaux de différentes tailles et de différentes situations. Afin de garder une ligne commune pour tout le développement du projet, nous avons choisi de concevoir 3 pôles distincts mais ayant un concept identique: une cour ouverte sur le canal et à l’arrière des cours fermées, notre hypothèse de base étant les cours.


Nous avons choisi de concevoir 3 pôles distincts ayant un concept commun: une cour ouverte sur le canal et des cours fermées, notre hypothèse de base étant les cours.

Le projet dans sa totalité fait en collaboration avec Sébastien Sartorio et Laetitia Berger. Le projet est ensuite divisé en 3 parties traitées séparément.

Pour intégrer le projet à son environnement, du côté sud on trouve des barres pour renvoyer l’image des ateliers mécaniques. Au nord, on trouve une barre qui se courbe pour ramener le parc en direction de la ville. L’espace public est voulu comme un espace de rencontre, minéral. L’espace de quartier est plutôt végétal.

Suite à une dilatation du canal, la rive s’est déformée afin d’accueillir un port au centre d’un nouveau quartier. Le projet intègre des espaces privés ainsi que des espaces publics.

Le bâtiment étudié est orienté Nord-Sud sur la partie longeant le port et Est-Ouest sur la partie sise au bout du port.

Le bâtiment a des perméabilités grâce à ses cours situées au premier étage.

L’aménagement autour du port est fait dans le but de diriger les flux maritimes et pédestres. Du côté nord on trouve une place publique et le côté Sud est dédié au lacustre.


de la barre étudiée
La typologie des logements se compose de deux parties. Une traversant avec le séjour et un noyau dur avec la circulation, les services et la partie nuit.

La typologie des logements se compose de deux parties. Une traversant avec le séjour et un noyau dur avec la circulation, les services et la partie nuit.

de la barre étudiée

